NEXT PROJECT

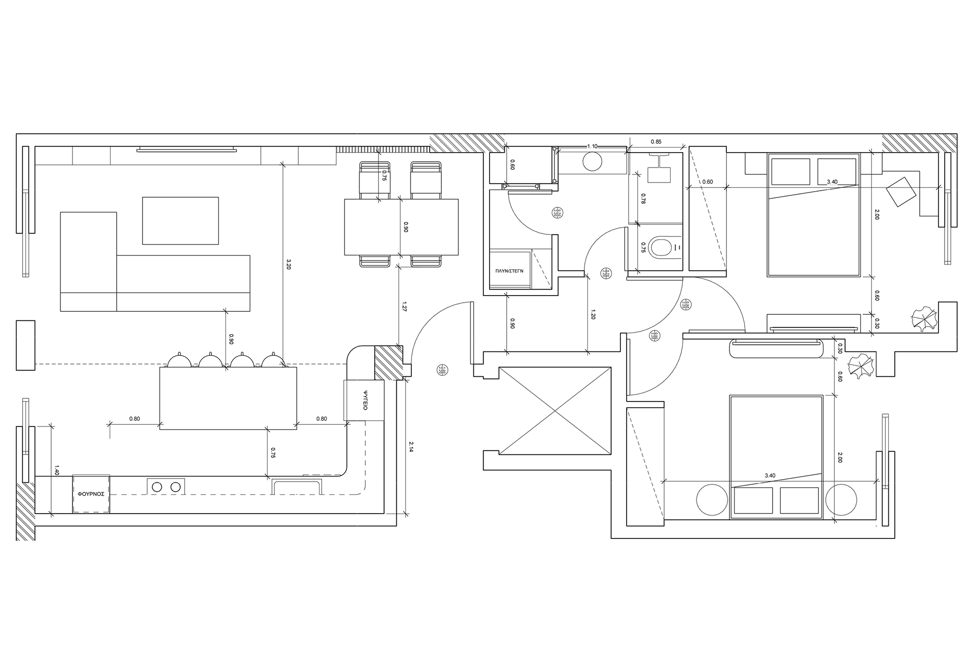
AIRBNB APARTMENT — KYPSELI, ATHENS

2025 · 78 m²

BRIEF

Convert a dated Athenian flat into a boutique-quality short-stay: warm, local, low-maintenance.

CONCEPT

A blend of classical Hellenism and contemporary Athenian living—sculptural forms, Hellenistic-influenced natural materials, and layered lighting that articulates spatial rhythm.

KEY INTERVENTIONS

Sculptural Volumes · Custom Furniture · Layered Indirect Lighting

PALETTE — TEXTURES

Travertine micro-cement · Oiled oak veneer · Off-white lime plaster · Marble accents · Stone pebbles · Aged brass details

Next
Next

SINGLE HOUSE